以微见著洞察趋势 客观行文理性参考
太原楼评☞| 业内视角
441篇/文4199字/阅读19分
导读
太原楼市行情:刚需跑量,豪宅独立,改善内卷!
察势者明,趋势者智,驭势者独步天下!见字如面,大家好,我是太原楼评君!
如今,太原的楼市分化的几个现象,有些逻辑让人很费解。
一,新房比准新房贵!
譬如,能考虑买新房就不买二手房,于是新房均价比二手房高。通常会说二手房楼龄老了,可是即便是在售的同一个小区,也是新房比二手房贵,这就体现了营销价值。
二,同级学区房翻倍!
其次,北城名校学区房,单价虽小贵,但总价并不高,百万预算完全可进入前十的小学。而南城,因为人多校少,前十的老破小学区房,比星河湾单价都要高一大截。
三,刚需降豪宅涨价!
都说太原楼市下行,走一圈环线上的刚需盘,确实如此,凡是有凤厂的区域,基本都有一个洼地,较高位时打个三四折是存在的。但瞅瞅小店环线内,星河湾每年都十几亿,金茂府也是,销量不仅没啥波动,畅销的户型居然还涨价了,但是吧你卖不行。
四,买卖都是当韭菜!
在看悲催的房主,买的时候,听到的声音是“赶紧买,今年不买,明年就涨价”,等到交了房,甚至是同一个人,转而告诉你“今年赶紧卖,今年不卖明年还掉价”。
合着就永远是“今年的韭菜”投资踏空!有认真的同志,转而对峙,说的咋都不靠谱。答曰:靠谱咋挥镰刀,再说了,你一个成年人,预测本不靠谱,你咋还信呢?
于是看到了,劝你买房时候,相信我,这小区哪哪都好,咱们以后做邻居。劝卖房时候,这房子哪哪都烂,现场直播卖一下房,六折直播间都没人买。反正他不会告诉你,二手房平均去化周期早就是从三个月到了十八个月,等你着急时趁机要你命。
五,刚需触底改善没!
理性的说,太原的楼市其实存在合理性的,毕竟作为省会城市,城市均价不算太高,作为刚需置业还是比较友好的,毕竟只要你愿意多走几公里,房价能便宜一小半。如果未来大太原都市圈的蓝图能实现,产业升级虹吸人口,房价回升是有希望的。

但作为投资而言,普通的新太原人是很难获利的,首先是太原的改善盘单价偏高,动辄都贰万多了,毛利润提前透支了升值潜力,典型如星河湾。其次老太原卖掉老破小,足够改善盘的首付了,通常又是编内人员,公积金覆盖房贷压力就很低了。
豪宅准豪宅神仙打架!
回到正题,相比较太原楼市昔日繁华,如今确实落寞了很多,即将进入市场的新项目,楼评君盘了十个盘,看似数量表不多,但集中于城央,想买房完全可以等等。
以太原均价1.1万为参考,单价和面积能达到1.5-2.0倍左右,总价230万以上可谓准豪宅级,放在即将入市十大新盘已有过半了,太原楼市必将出现准豪宅神仙打架。
故而,竞争之下,产品力愈强,价格愈趋于合理,楼评君或明或暗揣测其定位属性,简要写点楼评观点,以待逐篇展开。
(一)华润长风中心(瑞府)
太原长风商务区地块,对于楼评君是有些遗憾,一年前参与服务地块的可研和定位咨询及概念方案,然而谋事未成,没能帮助投资商竞争拿下,与“地王”失之交臂。对于地块熟悉程度较高,加上与城市发展的传奇命运,索性延伸写下地块的前身今生。
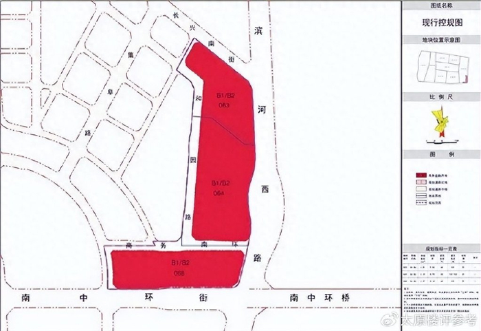
原地块规划为格盟金融城总用地约294亩,在2007年的8月就由山西国际电力集团房地产开发有限公司以7.34亿元获得,亩价仅仅是250万左右,如今看起来很划算。
原用地性质为商业商务用地(B1/B2),容积率按出让用地算为4.95—5.82,建筑密度45%;按净用地算为6.442—7.32,建筑密度59%,建筑限高150米。

最初规划方案是符合长风商务区最初整体定位的,包括超五星级酒店、5A甲级写字楼、配套商业、公寓等大型城市综合体,2012年4月奠基,预计总投资100多亿元。这个投资额感觉是有点掺水的,按当时的投资预算应该在四五十亿就足够了。
2014年格盟国际为推动开发,引入了中建一局及和合控股,项目公司股权评估值为16.47亿元,中建及和合分别以4.94亿元各收购30%的股权,格盟持股40%。

但是引入了两家股东后,却没能愉快地合作进行下去,项目在净地基坑施工后,便停下了脚步,开发进度停滞不前,最终夭折,城市超级综合体的蓝图未能实现。
其后的日子里,楼评君在2018-2019年也曾服务过头部房企关于地块的开发价值研判。鉴于太原市场运行的情况判断,按原商业地块属性开发,市场流通风险度极高,而体量因过于庞大,其产品属性必然是大部分趋于类住宅方向或地块控规大调整。
契机出现在2021年,为落实省政府相关投资政策,化解国有资产闲置及安全隐患等问题,晋源区政府申请对JY-01片区08街区063、064、068地块进行控规修改,将地块性质由商业商务用地修改为二类居住用地,综合容积降为4.1,商业兼容30%。

太原长风西频出地王,地块估值已今非昔比,但这一年也是恒大暴雷年份,近三百亩拿地实力门槛非常高。
而长风商务区深耕者和最大红利者是华润置地,加上其央企身份,故而在控规调整之初,便有传闻控规是为“华润”量身定制,延续其传奇。

用地性质的改变,对于长风商务区商务属性定位是有所削减。就纯地块价值利用而言,虽属商务区压轴地块,但临近两条快速道,昭示性很强,通达性却受到了局限。

具体看一下,公示项目建筑工程规划方案,总建筑面积:78万平方米,地上建面:64万平方米,地下建面:14万平方米,公建占比达到了37%,这个耐人寻味!
设计院采用了太原市建筑设计研究院,这级别大概就说明了方案的主导方是谁了。

看形态上,公建化立面挺高大的,可为啥总感觉有点和绿地的中央广场似曾相识,话说来了,这个地块的商业的动线确实不好排布,商业建筑的市场价格要低于住宅。
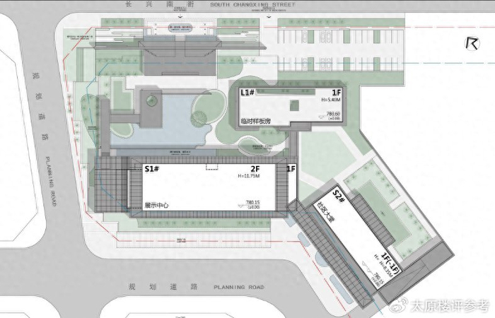
5月,华润太原长风中心项目展示中心临时建筑工程规划方案的公示,展示中心、社区大堂和临时样板房。售楼部选择了地块北侧,也体现了地块的使用的尴尬。

随后地块控制性详细规划修改方案也出炉,规划总面积19.59公顷,建筑限高146.8米、120米,高层住宅建筑面宽不应超过60米且须采用公建化立面设计。
结合楼评君的地块咨询经历,该地块开发策略极有可能是地标性建筑为项目抬轿子,看似是明星产品,用于提升溢价能力,实则沦为瘦狗,住宅为项目的现金牛产品。

故而该项目住宅溢价需要极高的占位,住宅层高和超高建筑的高公摊因素导致,起步面积不能太低,预测北侧地块200-300㎡为主力,单价上贰万是极大概率事件,南侧可能相对偏小,主力也要在150-200㎡之间,单价也要站在对面汾河湾之上。
据传案名为“瑞府”,不过全国瑞府在高端豪宅中表现较为中庸,太原应该不会太冒险,毕竟滨河金茂府有前车之鉴。其次,40万㎡住宅开发至少要五年,要稳妥。
(二)小王村金茂悦
写完华润就感觉调起高了,唱完实在太累了。金茂悦,整体还是很不错,是顺应市场需求的,拿地成本确实不高,啥时候推进“合作”了,楼评君就此篇单独展开说说。
(三)中铁建紫竹院
这和滨河金茂府“孪生兄弟”,毕竟中铁建前有花语堂,中正我有滨河金茂府,皆是欲与天公试比高之辈。
按照中铁建不服心态,前有不服融创学府壹号院,大概率紫竹院也不服中正的滨河金茂府,加上控规143米地标高度,必然要和邻居斗斗法!
(四)南堰保利璞悦
保利璞悦,西中环内,中庸,刚改改善类项目,容积率3.8,较同类偏低,建筑高度不统一,部分小高建筑的舒适度应该不错,产品也是紧贴市场主流需求,省院设计。
这盘四平八稳,主要走流量的轻改善,保利这片区域内多点布局,有连片效应。

(五)山大南瀚文源
这个名字就很“水”,大概是怕和晋中榆次的重名吧。
南中环的地段不错,山西大学南门,最初应该就打算给山大内部教职工消化,但他们没有学区诉求,对地段也不care。
在山大老师眼里,七八千的大院也能住,最多给你出一万,爱卖不卖。于是开发商舍近求远,以现房姿态面向社会。
正所谓墙内开花墙外香,也许山大老师们不看重的,恰好是外面的人需求的。预计对外的价格没个一万四五,它是不愿意卖的。
(六)小吴金地领峯
二年前,老友还在金地,就说要搞这个项目。如今,故人已去魔都,项目羞羞答答的才开始公示,今年4月份,小店区小吴地块项目建筑工程规划方案公示。

位置不错,龙城南街以北,坞城南路以东,不过体量不大,总建面11.6万㎡,底商建面9万㎡,容积率2.6,因为限高,小高层的形态建筑高度48米,是个舒适盘。

邻居既有红得发紫的龙城金茂府,也有“躺平”的交控置业龙锦苑,价格预计不低。
(七)拜仁金地华章
这项目原来是中体未来的,搞拜仁足球学校,给配套了房地产开发。2023年4月份,中体未来出让了60%的股份给金地,于是变成了金地华章!

在太原晋阳湖片区,2.9的容积率不算高,从公示资料看,户均在130㎡,楼评君和金地老爷们也不熟,但感觉扩张还挺快的,区域改善盘价格吧。

(八)中泛金樾府
这是神奇的项目,占据了长风街平阳路的黄金位置,然而命途多舛,已经三易其手!最初为山西锦地裕华房地产开发有限公司开发的“锦唐华庭”,2017年陷入停滞。
2020年3月,以“极高”价格转让至山西园区建设发展集团有限公司名下,并更名为平阳新苑建设项目,当时转让的综合成本曾让楼评君咂舌,很难赚钱,有违常理。

然而,山西园区建设发展集团由于公司改组,加上房地产市场变化,投资预期已无法实现,该项目又经过评估和策划,转让与山西中泛集团,更名为中泛金樾府。

位置不错,产品上略显陈旧,单价心理预期偏高,鉴于项目命途多舛,祝福顺遂吧。
(九)小马北城改—华远
这个项目曾经是太原最早的商品房别墅——韶曦别墅!

后来又更名为富贵园,龙城花园别墅。其地段是相当不错的,西临汾河,北侧省实验中学,南侧龙城大街,北侧南中环,是城央少有黄金地段,产品上也并不输格盟。
如今地块流转在省属五大国企之一的手中,鉴于项目历史积弊较多,梳理安置问题复杂,虽然已经相应规划和概念方案均启动,但是进入市场的时机仍属未知。
(十)小马南城改—保利
该地块和格盟,韶曦别墅地块,可谓是太原待入市的准豪宅三寡头!
虽然该地块仅公示,花落谁家尚未可知,据传保利、绿某、龙某都曾垂涎此地久矣,但鉴于片区的机遇和主管部门的排序优先,只要保利愿意,楼评君认为优先会是它!
近日,前辈赠言,文稿不宜过长,不要写太多,不要给论据直接给观点和情绪就行,读者没那么多脑子和精力来细细读。对不起,楼评参考的读者,大家受罪了!
文中意见和内容仅供交流使用
-- END --

© Copyright
作者:张明 图片:来源网络 侵删
原创作品未经同意或授权不得商用
4001102288 欢迎批评指正
All Rights Reserved 新浪公司 版权所有