很多小户型的装修,真的是太有想象力了,这不,最近杭州一家三口(@小小的家)就晒出了自己的小房子,真的是又有特点又舒适。
这个60㎡的小家并没有留出玄关的位置,反而在一进门的地方做洗手台,方便洗漱,并实现干湿分离;再往里走,原先的主卧室变成了次卧,并强行切出一间小小的客厅,你别说,还挺实用。

话不多说,今儿就一起来看看这个小家有哪些可圈可点的地方,各位也一起来评价一下~
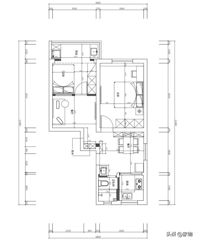
【60㎡的“折角”户型】

先来说说这个小家的户型。
- 全屋整体户型其实并不算太好,转角特别多,而且大多地方很窄,像是缺了一角的长方形,十分考验空间利用能力。
- 若分成三个空间的话,进门处便是家中的第一个空间,容纳下餐厅、厨房和卫生间,正如我上面所讲,没有玄关,而是将转角空间留给洗手台,用起来倒是方便。
- 再往里走有两个比较大的卧室,以前设定的次卧室现在变成主卧,空间很大;而原本的次卧室一切为二,里面留给孩子,外面做一个小小客厅,好看又好住。
【入户玄关放洗手台,不做定制鞋柜】

入户玄关有一个小转角,本身可以做定制柜收纳鞋袜,但一方面是为了释放卫生间内的空间,另一方面则是为了让一进门的地方不会显得太憋屈,干脆就将 洗手台外移,放在了一进门的位置。
说起来,回家后洗洗手也挺方便。

与此同时,这洗手台与里面的卫生间形成干湿分离,早晨家里人洗漱和如厕可以互不打扰。
小鞋柜则放在了门的另一边,也算是时刻提醒自己不要买太多鞋,并坚持断舍离的习惯,否则真的会显乱。
【3㎡厨房,和更小的卫生间】

厨房差不多有3㎡左右,搭配一个放厨电的收纳架,变成了U形格局,各种厨电厨具嵌入柜子里,台面转角处也留出了一个小小的切菜备菜空间,虽然很紧凑,但一间厨房该有的功能它倒是也都有。

之所以要将洗手台外移,主要也是因为卫生间内实在太小,想做浴室的话只好如此,说起来也算是半个“三分离”式格局了,洗漱如厕沐浴互不打扰,一家三口生活的话,用起来真的非常舒适。
【餐桌塞进餐边柜,背面还有窗】

不得不说,家里虽然是个只有60㎡的小户型,但采光真的是非常不错,不仅厨房卫生间都带窗,算是全明户型,餐桌的位置甚至还有一扇外窗,再加上楼层较低,窗外的绿荫也为小家内增添了几分生机与活力。

但话又说回来,毕竟家里空间较小,想要放上一张哪怕是一米六的餐桌也很勉强,只好利用餐边柜内收的设计,在平时将桌面塞入餐边柜底部进行收纳,日常一家三口吃饭空间足够,家里来人做客抽出来也能坐下更多的人。
【主卧变次卧,一切两半做客厅】

家里的主卧室带阳台,原本是面积最大的一个房间,但现在却变成了次卧。
原因无他,就是为了切出一间小小的客厅,哪怕只摆上一张双人位沙发,也能有个一家三口共聚看电视观影的地方,让小家功能变得完整。

次卧室留给孩子当儿童房,虽然小了一些,但还是可以摆上一张双人床,从小学用到大学都没问题。
阳台一侧做洗衣柜嵌入洗衣机和烘干机,另一侧则放书桌当学习桌,小小的儿童房也算是功能齐全。

床头和客厅中间的隔断墙上,掏出了一个方形的内窗,一方面,它可以避免影响光线和空间通透感,另一方面,也算是增加了额外的采光和通风性,哦对还有,让次卧室显得多了几分田园气息。
【次卧变主卧,又大又宽敞】

最后就是家里的主卧室啦,一张1米8的超大双人床放在中间位置,两个人躺也不觉得挤,靠窗的位置放书桌,旁边用半身矮架代替床头柜,既能收纳又能放阅读灯,一物两用更加节省空间。

至于衣柜,按照屋主的喜好选择了实木的成品柜子,虽说不做定制柜会浪费一部分头顶的纵向空间,但总归也是为了卧室内的整体氛围感考虑,无关对错,只是喜好抉择问题。
【文末结语】

总的来说,杭州这一家三口的60㎡小家虽然面积很小,但各种装修布置都有条有理,无论是无玄关,放洗手池的设计,还是在次卧室切出客厅,都考虑到了一家人的生活习惯,我个人还是挺喜欢的,不知道各位觉得如何呢?
(图片来源于网络,如有侵权立即删除)
4001102288 欢迎批评指正
All Rights Reserved 新浪公司 版权所有
