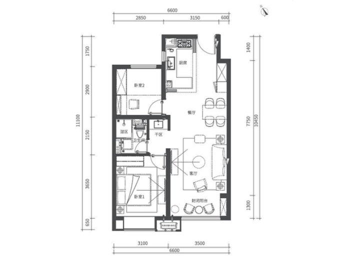
万科·西铭小镇目前在售,约7300-8500元/㎡,主力户型为88~115㎡二居室,三居室,其中两居户型为二居室、南北设计,该户型格局方正,布局舒适,科学功能分区,南北通透;宽敞双卧,独立餐厅,舒适尺寸,畅享盛宴。

在楼盘整体规划方面,万科·西铭小镇共占地240300 ㎡,规划4314 户户,为装修交房,最近的交房时间为2023年12月30日。
万科·西铭小镇周边配有:
项目自身属于集度假、休闲、购物、观光、娱乐为一体,建设集康养、健身、避暑、观光为一体的休闲旅游产业基地,内部规划春和里商业街,复合休闲、娱乐、餐饮、公园等一站式功能,规划引入网红餐厅、书店、咖啡店等多元业态商户。
周边拥有多个商业中心,例如下元商圈和西客站商圈,包含下元商贸城、公元时代城、国际能源中心,海唐广场商业综合体、迎泽世纪城购物中心等,可满足业主日常购物需求。
项目5km范围内的医院有西山煤电集团职工总医院、中铁十二局集团中心医院、太原市第四人民医院、山西医科大学第二医院(西院区)。西山煤电集团职工总医院是三级乙等综合性医院和爱婴医院的达标单位。
项目签约春蕾景明幼儿园、山西九知实验小学,紧邻太原市重点中学——太原外语学校开城校区。山西九知实验小学”位于项目4号地块,是太原万科与万柏林区人民、万柏林区教育区签约,共同为项目打造的优质教育配套。目前,已为学校聘请太原市第四实验小学(原太师三附小)校长聂三敏担任总顾问,师资力量雄厚。
可满足日常生活所需。
综上,万科开发的文旅系产品,生态资源丰富,产品类型多样,自身规划商业和休闲配套,性价比很高。主推毛坯和精装住宅,首付仅需12.8万起,还有大面积的别墅户型,适合刚需和改善型人群。
文章来源:乐居君
4001102288 欢迎批评指正
Copyright © 1996-2019 SINA Corporation
All Rights Reserved 新浪公司 版权所有
All Rights Reserved 新浪公司 版权所有
